华盛兴邦产业园入口

华盛兴邦产业园(邛崃园区)

烘焙糕点、乳制品、酒水饮料企业专属产业容器,占尽天时地利,助力企业高效发展

中国白酒原酒之乡 · 绿色食品产业功能区

园区概况:实景呈现,所见即所得

华盛兴邦产业园位于邛崃绿色食品产业功能区核心位置,总规划面积大,厂房布局合理,硬件配套完善,实景如下,欢迎实地考察!

园区整体航拍

园区整体航拍 - 布局合理,空间充足

园区配套办公楼

园区配套办公楼 - 办公+生产一体化

园区厂房外观

园区厂房外观 - 现代化建筑,采光充足

产业基因:你的邻居,决定了你的起点

园区位于邛崃绿色食品产业功能区,周边汇聚伊利乳业、达能食品、水井坊、金六福酒业、锐澳鸡尾酒、金忠肉业等行业龙头企业,供应链、品控体系、行业人才全方位加持,为烘焙、乳制品、酒水饮料企业打造高起点发展平台。

乳制品企业专属优势

奶源采购、冷链运输、化验室配置、行业人才本地解决;与伊利同区,享受政府高重视度、配套高优先级、政策强倾斜。

酒水饮料企业专属优势

邛崃原酒年产能超30万吨,基酒当天运输、零库存使用,原料运输成本直降15%-20%;50公里内有青梅、糯玉米等天然原料基地,发酵原料就地取材。

烘焙糕点企业专属优势

乳制品、油脂、糖类等大宗原料本地集中采购;物流配送成熟,发往成都及周边当日达,短保产品新鲜度全程可控。

通用产业优势

成熟产业集群带来完善的配套体系,检疫、冷链、供应链管理等能力全方位对标行业龙头,企业无需跨区域解决核心资源需求。

能源成本:按住企业的"隐形杀手"

烘焙、乳制品、酒水饮料均为能耗大户,园区针对性推出低能耗成本解决方案,动力电、蒸汽、天然气、自来水价格均低于行业平均水平,大幅降低企业运营成本,省下来的都是净利润。

成本痛点 园区解决方案
烘焙烤箱、发酵箱24小时运转,电费占比高 动力电0.4-0.9元/度,比同类园区低30%-45%
乳制品杀菌、酒水蒸馏,蒸汽用量大 蒸汽320-350元/吨,价格透明稳定
天然气烘焙、锅炉供热、酒水酿造,燃气成本高 天然气3.3元/立方米,低于成都周边平均水平
生产用水量大(清洗、冷却、酿造),水费不可控 自来水3.9元/吨,接入稳定

成本测算:中型烘焙厂月用电5万度,电费每度便宜0.3元,一年省18万;乳制品/酒水厂蒸汽、天然气成本占比更高,节能降本效果更显著。

排污难题:高排水企业的硬伤,这里有解

乳制品、酒水饮料、烘焙企业排污存在排水量大、污水浓度高、需预处理等痛点,园区标配专属排污配套,从场地到通道全方位保障,让企业环保合规、成本可控。

硬件配置:全维度照顾企业特殊需求

园区根据烘焙糕点、乳制品、酒水饮料三大类企业的核心生产需求,量身打造硬件配置,从层高、承重到冷链、仓储,全方位匹配企业生产标准。

厂房内部实景

厂房内部实景 - 8-12米层高,5吨/㎡承重

电力配套设备

电力配套设备 - 1250KVA变压器,可增容

企业类型 核心需求 园区配置
烘焙糕点 层高够、承重够、通风好、物流快 8-12米层高,5吨/㎡承重,15米宽物流通道,成都40分钟直达
乳制品 洁净车间、冷链衔接、蒸汽足、排污便利 丙二类消防,蒸汽管道入户,20亩空坝放污水设备,距伊利近可借鉴品控
酒水饮料 发酵空间、重设备摆放、原料就近、恒温仓储 单层大跨度厂房,12米层高,基酒30分钟直达,天然气充足

通用硬件保障:所有厂房均为钢结构+丙二类消防,2楼配5吨货梯,1250KVA变压器可增容,满足企业生产规模扩大后的硬件需求。

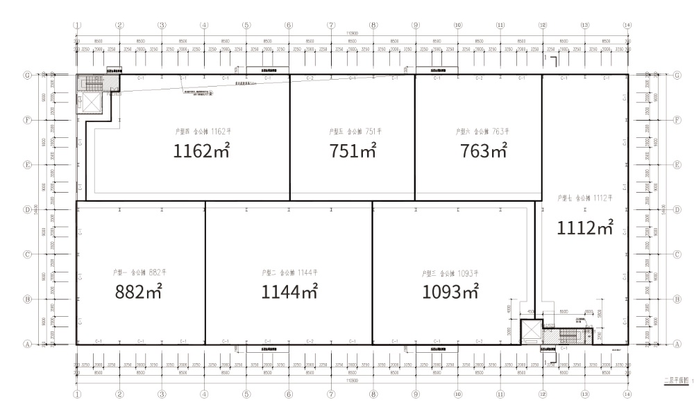
重点户型推荐:适配不同企业生产需求

园区打造多款专属户型,可拼可拆、空间灵活,适配初创品牌、区域加工厂、规模化全产业链企业等不同发展阶段的生产需求,40分钟即可从成都到园区现场考察。

Logo

户型① - 单层大空间户型

适配:中央厨房+烘焙工厂
核心优势:单层大空间设计,冷链衔接便捷,物流配送成都高效,满足中央厨房集中生产、快速配送的核心需求。

Logo

户型② - 灵活组合户型(751-1162㎡)

适配:初创烘焙品牌(电商+线下)
核心优势:面积可拼可拆,适应订单波动,享免租期支持,助力初创企业快速试错、低成本起步。

Logo

户型③ - 高挑空户型(12米层高,3598㎡)

适配:乳制品、果酒及配制酒企业
核心优势:12米层高,设备吊装方便,空间开阔,发酵罐、杀菌线等大型生产设备可全部摆放。

Logo

户型④ - 超大空间户型(5557㎡)

适配:规模化食品加工、酒水酿造全产业链、复合业态企业
核心优势:可布局发酵、蒸馏、灌装、仓储全流程,支持乳制品+烘焙+饮品复合业态,共享园区能源和排污配套。

物流效率:40分钟到成都,物流成本直降30%

园区坐拥多维交通网络,高速、快速路全覆盖,高铁通勤便捷,物流配套完善,完美匹配短保食品、冷链乳制品、大宗酒水的物流时效和成本需求。

生活配套:员工稳了,产能才能稳

园区围绕食品加工企业用工特点,打造完善的生活配套,降低员工生活成本和企业招工、留人成本,解决企业生产的人力后顾之忧。

入驻服务:SC证、环评、安评一站式办理

食品企业入驻最易卡在资质审批环节,园区提供全流程办理服务,专人跟踪、高效办理,让企业少跑腿、快投产,早投产一个月,多赚一个月的钱。

适配企业&专属招商方案

企业阶段/类型 推荐方案 核心优势
初创烘焙品牌(电商+线下) 户型②灵活组合 面积可控,免租期支持,快速试错
区域乳制品加工厂 户型③或④ 能源成本低,靠近伊利,供应链成熟,排污无忧
酒水饮料企业(配制酒、果酒、预调酒) 户型③或④ 基酒就地取材,能源成本低,产业氛围浓
中央厨房+烘焙工厂 户型①或④ 单层大空间,冷链衔接,配送成都方便
复合业态(乳制品+烘焙+饮品) 户型④超大空间 全产业链布局,共享能源和排污配套
欢迎携带生产流程图现场考察,一对一测算能耗、规划场地
18980853815
园区地址:成都邛崃绿色食品产业功能区金六福大道8号
从成都出发,40分钟即可抵达园区