园区概况

高标准打造的食品专属产业园,携手宝供物流联合开发,结构扎实、空间好用,满足食品生产全流程需求

  • 核心指标

    占地32亩,总建筑面积28000㎡,双层混凝土框架结构,丙一类消防标准

  • 开发背景

    华盛兴邦与宝供物流联合开发,融合产业运营与专业物流优势,打造食品产业标杆园区

  • 产业定位

    聚焦烘焙糕点、坚果咖啡、调味品、乳制品等食品品类,打造主城区食品生产核心载体

  • 核心优势

    主城区产业功能区,交通便捷、产业氛围浓厚,隐形成本更低,企业发展更高效

周边龙头企业集聚

娃哈哈 康师傅 统一 安德鲁森 好利来 五芳斋 香飘飘 圣恩食品 名扬火锅底料 正大食品

产业上下游资源高度集中,技术交流、供应商对接更便捷,招人留工更轻松

为什么选主城区

远郊厂房租金低,但隐形成本更高;温江园区位于海峡科技园核心区,交通、人力、物流全维度优势

交通极致便捷

  • 成都市区开车20分钟直达
  • 成名高速口2公里,免费通行
  • 地铁4号线1公里,门口公交直达
  • 双流机场20公里,商务出行高效

物流成本更低

  • 白家市场25公里,货源充足
  • 海霸王20公里,原料采购便捷
  • 主城区发货,成都及周边时效快
  • 28米宽通道,大货车进出不堵车

招人留工轻松

  • 通勤便捷,覆盖成都市区/温江城区
  • 周边生活配套完善,员工居住便利
  • 食品产业人才集聚,专业技工易招聘
  • 产业氛围好,员工职业发展空间大

商务往来顺畅

  • 客户考察无需出远门,体验更佳
  • 产业功能区政策支持,企业发展有保障
  • 周边龙头企业集聚,商务合作机会多
  • 园区配套办公楼,商务接待更专业

高标准厂房参数

量身打造食品生产专属厂房,重型设备可直接进场,无需额外改造,空间利用率拉满

项目 配置标准 核心优势
层高 一楼11米,二楼9米 适配高大烘焙、生产设备,无需拆吊顶
承重 一楼5吨/㎡,二楼2.5吨/㎡ 重型设备直接进场,无需加固地面
柱间距 12米 布局灵活,满足各类生产动线规划
月台 1.3米高,6米宽雨棚 装卸货便捷,雨天不影响作业
通道 28米宽 大货车自由进出,无拥堵问题
电力 1650KVA 满足高耗电食品生产设备需求
货梯 6部,每部5吨 上下层货物转运高效,承载能力强
其他 上万平米空坝 原料、成品周转空间充足

丙一类消防 | 双层混凝土框架结构 | 食品生产专属配套

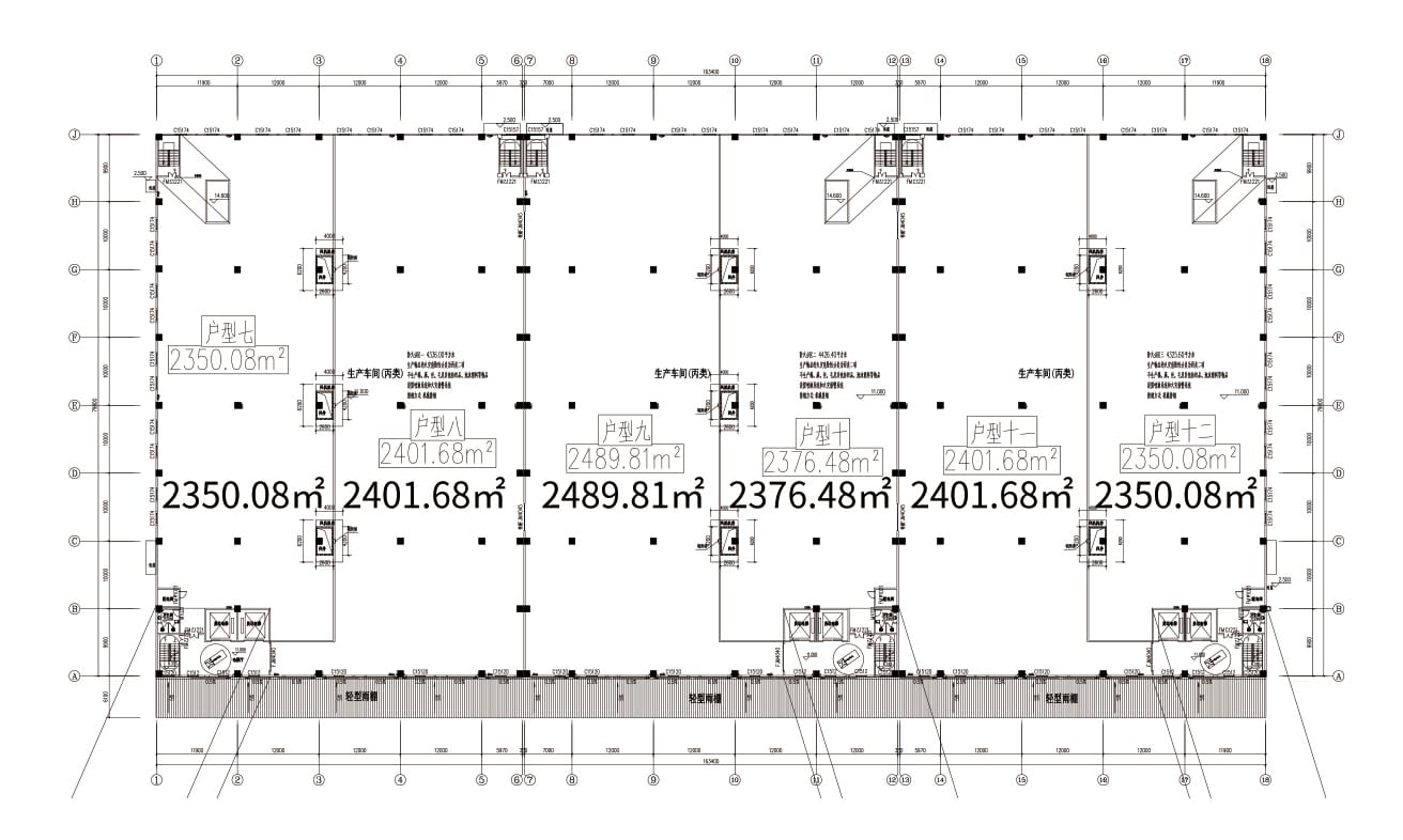
厂房户型详情

双层独立户型,按需选择,满足不同食品生产品类的空间、承重、层高需求

一楼框架结构户型图

一楼框架结构户型

  • 建筑面积: 14418.46㎡
  • 生产区层高: 11m
  • 楼板荷载: 5000kg/㎡(5吨/㎡)
  • 核心适配: 重型生产设备、核心生产区
  • 结构优势: 混凝土框架,丙一类消防
二楼框架结构户型图

二楼框架结构户型

  • 建筑面积: 14369.81㎡
  • 生产区层高: 9m
  • 楼板荷载: 2500kg/㎡(2.5吨/㎡)
  • 核心适配: 分装、包装、仓储、办公
  • 配套优势: 6部5吨货梯,上下转运高效

核心适配食品品类

根据厂房参数量身匹配,一楼/二楼/一楼+二楼组合多种选择,满足不同品类生产需求

烘焙糕点

一楼/二楼

烤箱等设备高度要求高,主城区配送时效要求高,一楼二楼均可布局生产/包装,满足全流程需求

坚果咖啡

一楼+二楼组合

一楼放置重型烘焙机,二楼做产品分装,6部5吨货梯直达,上下层动线流畅,空间利用率高

调味品

一楼

反应釜等设备重量大,12米柱间距布局灵活,毗邻名扬等龙头企业,供应商对接、技术交流便捷

乳制品

一楼

生产设备重量大、电力需求高,排污直接接入市政管网,主城区物流便捷,保障产品新鲜度

全方位配套与服务

园区硬件配套完善,软性服务贴心,为企业省心、省力、省成本,助力快速投产运营

完善硬件配套

  • 1200㎡专属办公楼,满足总部、电商、接待需求
  • 1500㎡员工宿舍,带独立卫生间,拎包入住
  • 园区500米内吃饭、住宿、超市、充电桩齐全
  • 上万平米空坝,原料/成品周转空间充足

一站式政务服务

  • SC证全程代办,专人跟进进度
  • 环评、安评一站式办理,无需企业多跑腿
  • 产业功能区政策对接,助力企业享受福利
  • 工商、税务等政务事项协助办理

定制化企业服务

  • 厂房定制装修,按需布局生产动线
  • 免租期可谈,根据企业投产计划定制
  • 专业物流对接(宝供物流资源)
  • 免费现场考察,量身规划物流动线

欢迎现场考察,量身规划生产布局

带设备清单即可,专业团队为您量层高、看柱距、算物流动线

地址:成都市温江区海峡科技园科兴路西段566号

成都市区出发 → 20分钟直达园区